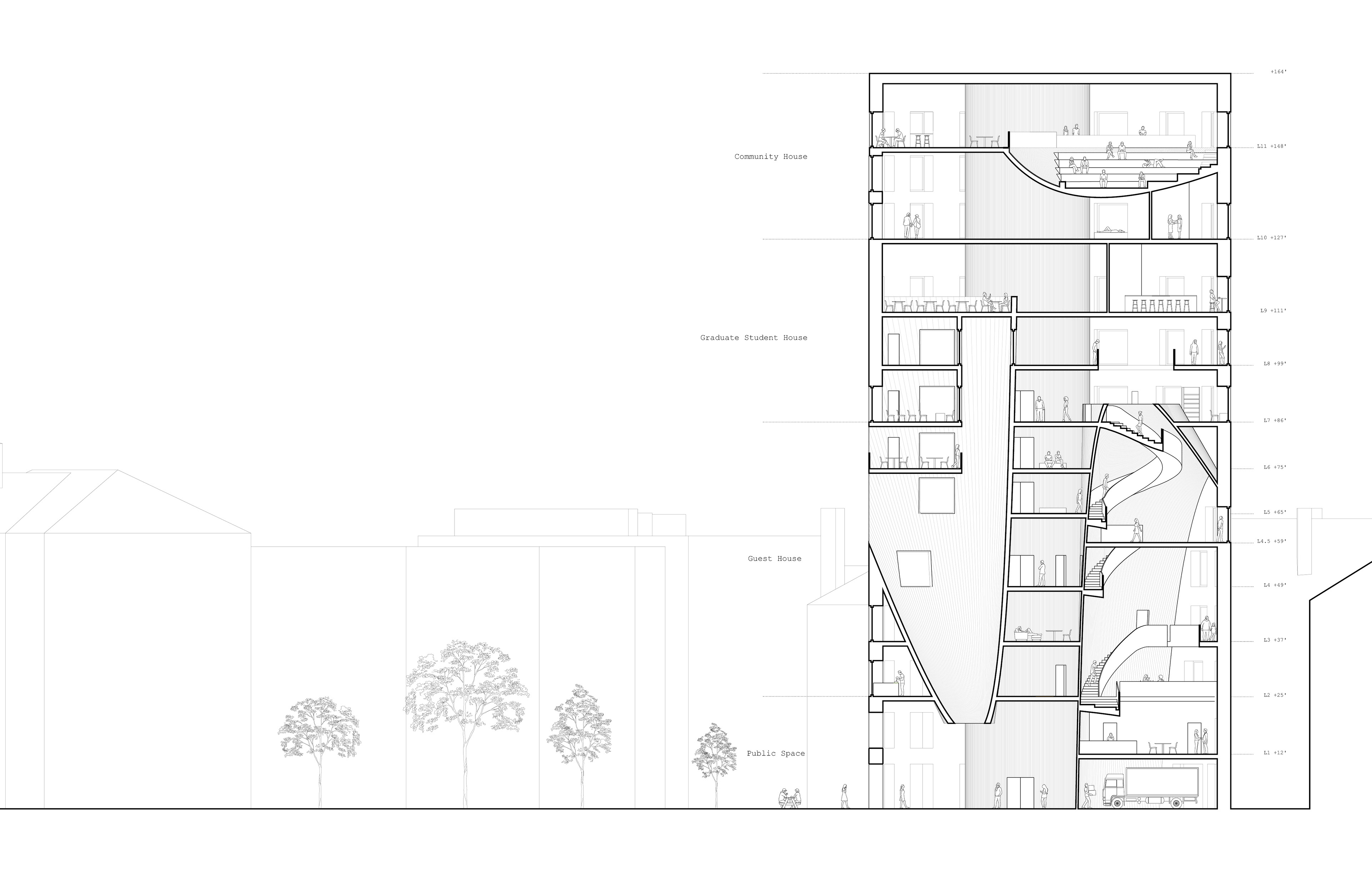
Centrally located on the quad in front of the Harvard Northwest Building, this project combines three programs - a graduate student house, a guest house, and a community house - to create a new building on Harvard’s campus. Housed inside of a cylinder tower, four geometric shapes create the vertical circulation and room division on the interior. An interior cylinder defines the vertical circulation while three cones create an opportunity to systematically divide space outside the vertical circulation. These three cones are clipped by the exterior cylinder in order to create various sized rooms throughout the tower. Two main cones, one “up-cone” and one “down-cone” are tangent with the vertical circulation cylinder and create varied size spaces throughout the building. These cones are filled with public and private program for each separate program.






